一戸建
| 賃料 |
14.5万円 | 交通 | 川越線 「南古谷」駅 徒歩15分 |
|---|---|---|---|
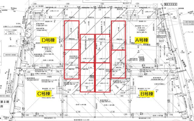
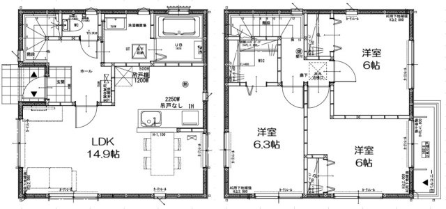
| 間取り | 3LDK | 所在地 | 埼玉県川越市大字木野目 279- |
| 専有面積 | 79.90㎡ | 築年月(築年数) | 2026年 2月 (建築中) |
「利回り」は、当該不動産の1年間の予定賃料収入の不動産取得対価に対する割合であり、公租公課その他当該物件を維持するために必要な費用の控除前のものです。
また、予定賃料収入が確実に得られる事を保証するものではありません。

アットホームなスタッフが地域の情報と一緒にご案内いたします^^水曜&日曜も営業しているのでお気軽にどうぞ♪

※地図上の物件位置は近隣に物件が所在することを表すものであり、実際の物件所在地とは異なる場合がございます。
049-233-5611
営業時間:9:00-17:00 / 定休日:年末年始・GW・夏季・祝日
| 所在地 | 埼玉県川越市大字木野目 279- | ||
|---|---|---|---|
| 交通 | 川越線 「南古谷」駅 徒歩15分 | ||
| 賃料 | 14.5万円 | 管理費 | |
| 敷金/保証金/礼金 | 1ヶ月 / - / 1ヶ月 | 敷引/償却 | - / - |
| 敷金積み増し | ペット飼育:1ヶ月 | ||
| 更新料 | 1ヶ月 | 更新事務手数料 | |
| 権利金 | 雑費 | ||
| 所在階/階数 | / 2階建 | 専有面積 | 79.90㎡ |
| 間取り |
3LDK
LDK 14.9帖 1室 / 洋室 6.0帖 2室 / 洋室 6.3帖 1室 / |
||
| 主要採光面 | 東 | 建物構造 | 木造 |
| 築年月(築年数) | 2026年 2月(建築中) | 契約期間 | 2年 |
| 総戸数 | |||
| 入居可能日 | 2026年3月上旬予定 | 現況 | 未完成 |
| 取引態様 | 仲介 | 特優賃 | |
| 保険 | 保険加入義務:有、保険名:e-net少額短期保険、保険料:20000円、保険期間:2年 | ||
| 保証会社 | 保証加入義務:必加入、保証会社名:ジェイリース | ||
| 駐車場 | 空き台数:2台 、 有 | ||
| 設備条件 | 公共下水 / 公営水道 / プロパンガス / ペット相談 / ペット飼育可 / 事務所可 / 2人入居可 / 室内洗濯機置場 / バルコニー / 電気有 / 照明器具付き / IHクッキングヒーター / コンロ2口以上 / システムキッチン / 対面式キッチン / コンロ3口 / カウンターキッチン / バス・トイレ別 / 追焚機能浴室 / 浴室乾燥機 / 温水洗浄便座 / 洗髪洗面化粧台 / 浴室1坪以上 / シャワー / 独立洗面台 / エアコン / 床下収納 / ウォークインクロゼット / シューズボックス / TVモニタ付インターホン | ||
| その他条件 | ホームマイスター24:1万6,500円 スマートキー:1,650円(月額) | ||
| 備考 | |||
| 物件番号 | 100822876 | ||
| 情報公開日 | 2026年2月9日 | 次回更新予定日 | 2026年2月23日 |
| 取引条件の有効期限 | 2026年2月23日 | ||
| 取扱い会社 |
有限会社 住センター 〒350-1174 埼玉県川越市かすみ野2丁目4番2 埼玉県知事(9)第12808号 埼玉県宅地建物取引業協会 |
||
049-233-5611
営業時間:9:00-17:00 / 定休日:年末年始・GW・夏季・祝日
| 所在地 | 物件の住所を表示。(詳細住所は表示していない場合もある) | ||
|---|---|---|---|
| 交通 | 物件(部屋)の沿線駅・バス停を表示。(複数駅・バス停の利用が可能な場合は最大3件まで) | ||
| 間取り/詳細 | 数字は居室数を表示。LDKはそれぞれ「リビング」「ダイニング」「キッチン」、S(納戸)とは「納戸」「サービスルーム」「マルチルーム」「フリールーム」など建築基準法第28条に適合していないため、居室と認められない納戸その他の部分を表す。 | ||
| 価格 | 販売されている住戸の価格を表示。仲介手数料は含まない。 | ||
| 管理費 | 共同住宅の設備その他共用部分の維持および管理をするために必要な費用を表示。 | ||
| 修繕積立金 | 共用部分の修繕のために積立てる金額を表示。 | ||

【外観】